Modern wonen in het hart van Maastricht
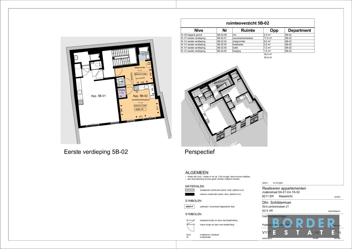
Deze prachtige nieuwbouwstudio aan de Jodenstraat ligt midden in het voetgangersgebied van het bruisende centrum van Maastricht. Gelegen op de tweede verdieping, achter de sfeervolle binnenplaats van het rijksmonument, biedt dit appartement rust, privacy en alle comfort van nieuw wonen. Het appartement wordt gemeubileerd aangeboden met hoogwaardige meubels.
De gezellige leefruimte is ingericht met een Hjord Knudsen 2-zitsbank en fauteuil, een eettafel met twee stoelen, en is voorzien van een dimbare lichtrail met spots voor sfeervolle verlichting. Een schilderij-rail biedt de mogelijkheid om eenvoudig kunst of decoratie op te hangen.
De moderne keuken is compleet nieuw en voorzien van een granieten werkblad, ruime kastruimte, combi-magnetron, inductiekookplaat, afzuigkap, koel-vriescombinatie, vaatwasser, en een luxe mengkraan.
De slaapruimte, afgescheiden van de leefruimte en door een houten shutter van de gang, beschikt over een Skagen boxspring (140×200) met matras en topper, een nachtkastje met verlichting en leeslampje, en een Pax kledingkast (75×60×239).
De badkamer is nieuw en beschikt over een ruime douche met glazen deur, een wastafelladekast met wasbak en verlichte spiegel, dubbel stopcontact, en inbouwspots. Het aparte toilet heeft een wastafelkastje met fontein.
De technische ruimte bevat een warmtepomp, boiler, verdeler voor vloerverwarming, en stoppenkast.
Het appartement beschikt over vloerverwarming door de hele woning, triple glas, twee eigen zonnepanelen, en een energielabel A+++. De ligging op de tweede verdieping geeft een prettig uitzicht en extra privacy.
Locatie
Aan Jodenstraat woon je midden in het historische stadscentrum van Maastricht, met gezellige cafés, restaurants, winkels en alle voorzieningen binnen handbereik.
Highlights
- Gemeubileerd met hoogwaardige meubels (Hjord Knudsen 2-zitsbank en fauteuil, Skagen boxspring, Pax kledingkast)
- Eettafel met 2 stoelen
- Tweede verdieping
- Vloerverwarming door de hele woning
- Triple glas en 2 eigen zonnepanelen
- Energielabel A+++
- Complete, moderne keuken: granieten blad, combi-magnetron, inductiekookplaat, afzuigkap, koel-vriescombinatie, vaatwasser en luxe mengkraan
- Badkamer met ruime douche, verlichte spiegel, inbouwspots en dubbel stopcontact
- Aparte toiletruimte met wastafelkastje en fontein
- Slaapruimte afgescheiden van leefruimte en gang door houten shutter
- Technische ruimte met warmtepomp, boiler, verdeler vloerverwarming en stoppenkast
- Dimbare lichtrail en schilderij-rail in de leefruimte
- Toplocatie in het historische stadscentrum van Maastricht
Interesse?
Ben je enthousiast geworden over dit appartement? Neem contact met ons op voor een bezichtiging en ontdek zelf hoe comfortabel en stijlvol wonen in het hart van Maastricht kan zijn!
| Totaal aantal huurders | Zelfstandige studio |
| Oppervlakte | Circa 28 m2 |
| Verdieping | Eerste verdieping |
| Interieur | Gestoffeerd & Gemeubileerd |
| Privé wastafel | Ja |
| Douches | 1 (privé) |
| Toilet(ten) | 1 (privé) |
| Keuken(s) | 1 (privé) |
| Woonkamer/keuken | Ja |
| Huisdieren | Nee |
| Wasmachine | Ja (2 x gedeeld) |
| Droger | Ja (2 x gedeeld) |
| Balkon | Nee |
| Tuin/buitenruimte | Nee |
| Fietsenstalling | Ja (binnentuin) |