Te huur: Stijlvol appartement op toplocatie in Wyck, Maastricht
Wonen op een toplocatie in Maastricht? Dit stijlvolle appartement aan de Wilhelminasingel 99 C02 in het geliefde stadsdeel Wyck biedt alles wat u zoekt. Gelegen op loopafstand van het centrum, het centraal station en diverse voorzieningen zoals supermarkten, universiteiten en het Vrijthof, combineert deze woning comfort met een uitstekende bereikbaarheid.
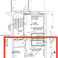
Het appartement bevindt zich op de tweede verdieping en beschikt over een moderne, volledig uitgeruste keuken, een gemeubileerde slaapkamer en een nette badkamer met douche, toilet en wastafel. In het souterrain zijn een gezamenlijke wasruimte en een privé berging aanwezig.
De woning wordt aangeboden met basismeubilair, waaronder een bed, kast, eettafel en stoelen.
Kortom: comfortabel en centraal wonen in het bruisende Maastricht.
| Totaal aantal huurders | Zelfstandig appartement |
| Oppervlakte | Zie plattegrond |
| Verdiepin | Tweede verdieping |
| Interieur | Gemeubileerd & Gestoffeerd |
| Privé wastafel | Ja |
Douches | 1 |
Toilet(ten) | 1 |
| Keuken(s) | 1 |
| Woonkamer | Nee |
| Huisdieren | Nee |
| Wasmachine | Ja (gezamenlijk) |
| Droger | Ja (gezamenlijk) |
| Balkon | Ja |
| Tuin | Nee |
| Fietsenstalling | Nee (wel privé berging) |